SUSTAINABLE VILLA
ARCHANES AREA - CRETE ISLAND
2017
Project:
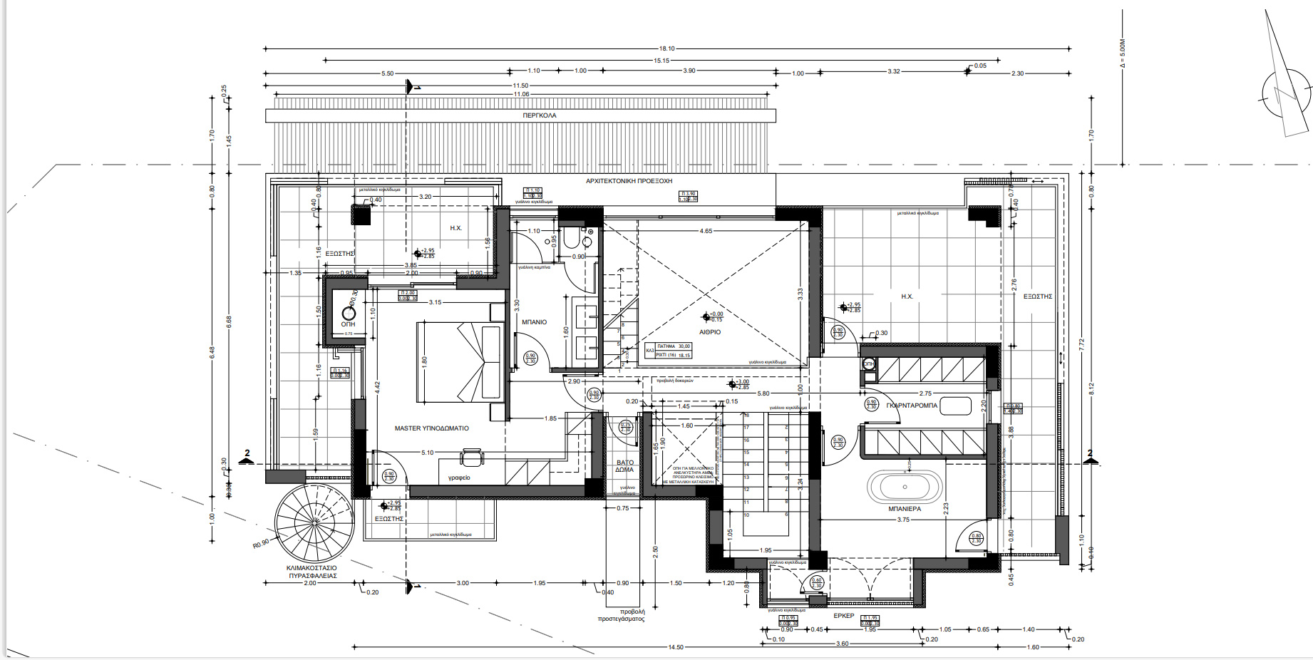
Sustainable Villa with a pool, that exploits the Sun to the maximum for both the heating as well as the cooling of the building and uses the minimum of energy. The Villa is designed with the principles of LEED . The design is Cretan, as well as Mediterranean, adjusted to its environment.
-
Location:ARCHANES AREA - CRETE ISLAND
-
Client:Private
-
Project status:Proposal
Credits
Project Manager: Eleftheria Tzanaki