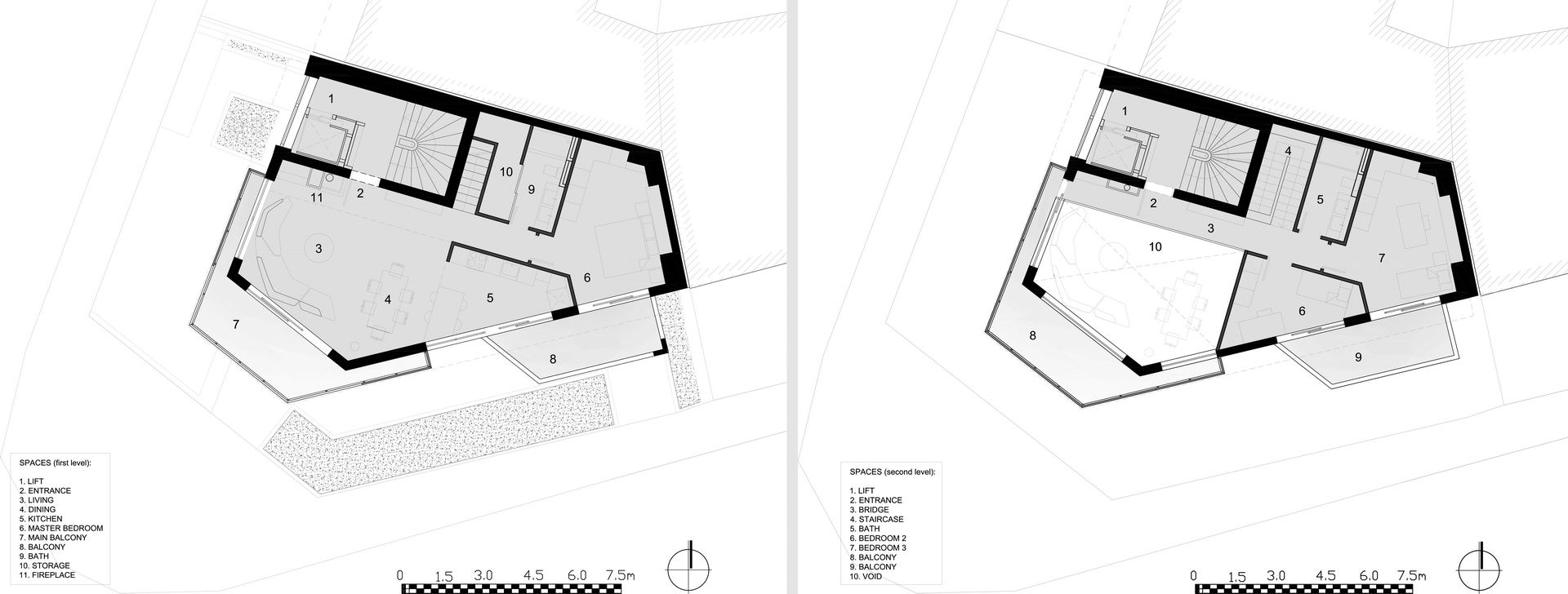
TWO-FAMILY RESIDENCE
Irakleio city - Crete island
2013
Project:
HONOURABLE MENTION IN THE CATEGORY
“BEST FIRST BUILDING BY A YOUNG ARCHITECT OF THE YEARS 2009-2013”
-
Location:Irakleio city - Crete island
-
Client:Private
-
Project status:Completed
Credits
Project Manager: Eleftheria Tzanaki
Photography: ©Erieta Attali