WHITE URBAN APARTMENT
Irakleio city, Crete island
2023
Project:
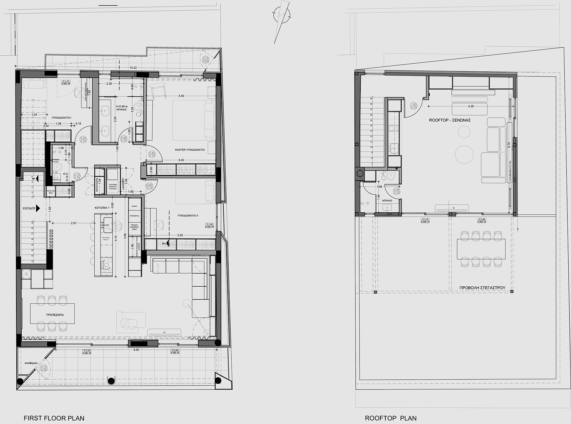
Total Refurbishment for a 250 m2 urban apartment and its facades and transformation into a contemporary, minimal, functional dwelling that offers relaxation and quality of modern life to its occupants.
-
Location:Irakleio city, Crete island
-
Client:Private
-
Project status:Completed
Credits
Architect Designer: Eleftheria Tzanaki
3D Renderings: Zoi Preari Architect
Construction Company: A2G Architects
Photography: © Sfakianakis Giorgos