ZEN HOUSE
North of Crete island
2020
Project:
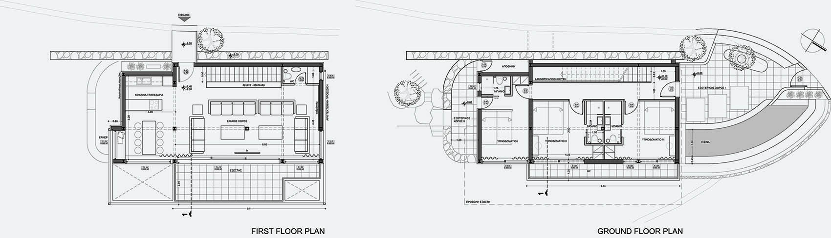
"Zen House" is a private home available for guests in search of a tranquil place to relax and reconnect with the core elements of nature. The Zen House is set in a simple and natural environment overlooking the sea.
-
Location:North of Crete island
-
Client:Private
-
Project status:Completed
Credits
Architect Designer & 3D Renderings : Eleftheria Tzanaki
Construction Company : A2G Architects
Photography : ©Messaritakis George, ©Louisa Nikolaidou