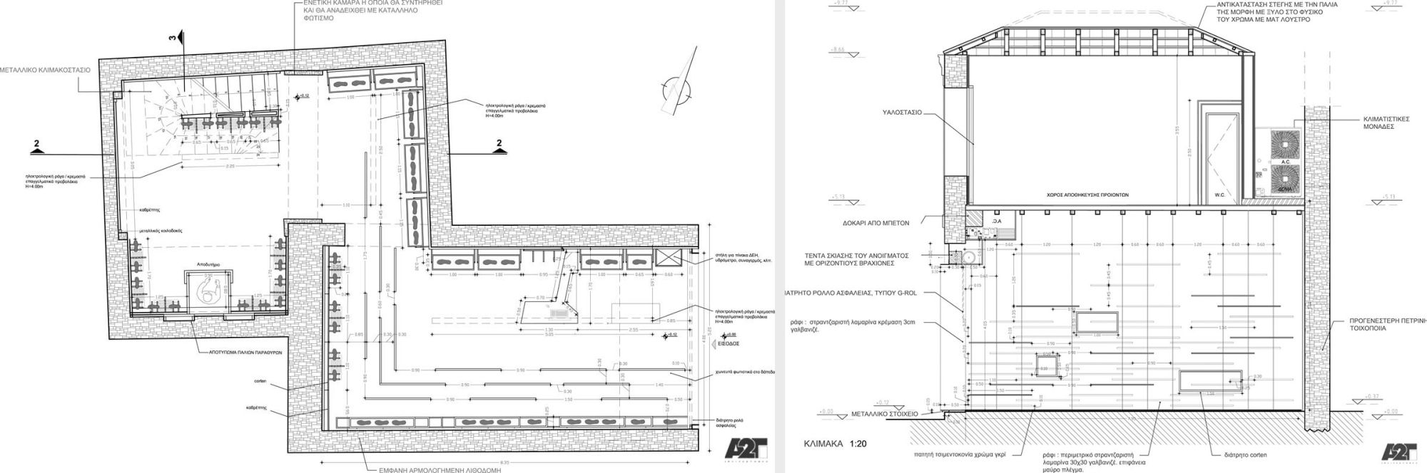
ENERGY SPORTSWEAR STORE
Irakleio - Crete island
2014
Project:
A2G Architects
-
Location:Irakleio - Crete island
-
Client:Private
-
Project status:Completed
Credits
Project Manager: George Anagnostakis, George Galetakis, Vaggelis Grigorakis
(A2G Architects)
Collaborator Architect + Lead Designer: Eleftheria Tzanaki