URBAN APARTMENT
IRAKLEIO - CRETE ISLAND
2018
Project:
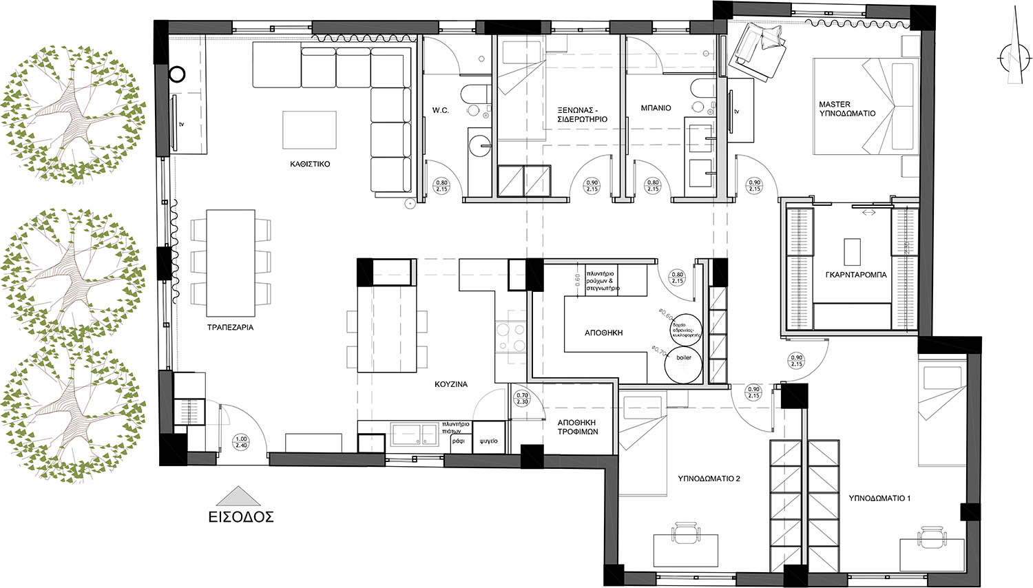
Total Refurbishment for a 140m2 house. The proposal is Victorian style, which includes all the comforts that a contemporary urban house requires. The aesthetic of the house is so romantic, cosy and relaxing as the couple is looking for.
-
Location:IRAKLEIO - CRETE ISLAND
-
Client:Private
-
Project status:Completed
Credits
Project Manager: Eleftheria Tzanaki
3D Renderings: Eleftheria Tzanaki
Collaborator Architect in interior 3D Renderings: Dimitra Chatziandreou